Chung cư Vega Homes
Email : sotaychungcu@gmail.com
Hotline : 0964633626
Chi tiết dự án
Thông tin chỉ mang tính chất tham khảo, hiện tại chưa có thông tin chính thức từ CĐT
QUÝ KHÁCH CÓ NHU CẦU XIN VUI LÒNG ĐỂ LẠI THÔNG TIN

• Tên dự án: Khu nhà ở xã hội dành cho công nhân xã Quang Châu, huyện Việt Yên, tỉnh Bắc Giang
• Tên thương mại: Vega Homes
• Vị trí: Xứ đồng Đồng Khém, thôn Tam Tầng, xã Quang Châu, huyện Việt Yên, tỉnh Bắc Giang
• Chủ đầu tư: Công ty Cổ phần Đầu tư Vega
• Diện tích đất dự án: 42.965,9 m2
• Diện tích cảnh quan: 10.348,54m2
• Ô đất HHCT:01 - Nhà ở xã hội
- Diện tích đất: 8.492,61 m2
- Diện tích xây dựng: khoảng 5.002,2m2
- Diện tích sàn xây dựng: khoảng 76.822,4m2
- Quy mô: 3 toà cao 18 tầng
• Ô đất HHCT:02 - Nhà ở thương mại
- Diện tích đất: 2.114,39m2
- Diện tích xây dựng: khoảng 1.223,9m2
- Diện tích sàn xây dựng: khoảng 21.610m2
- Quy mô: 1 toà cao 18 tầng
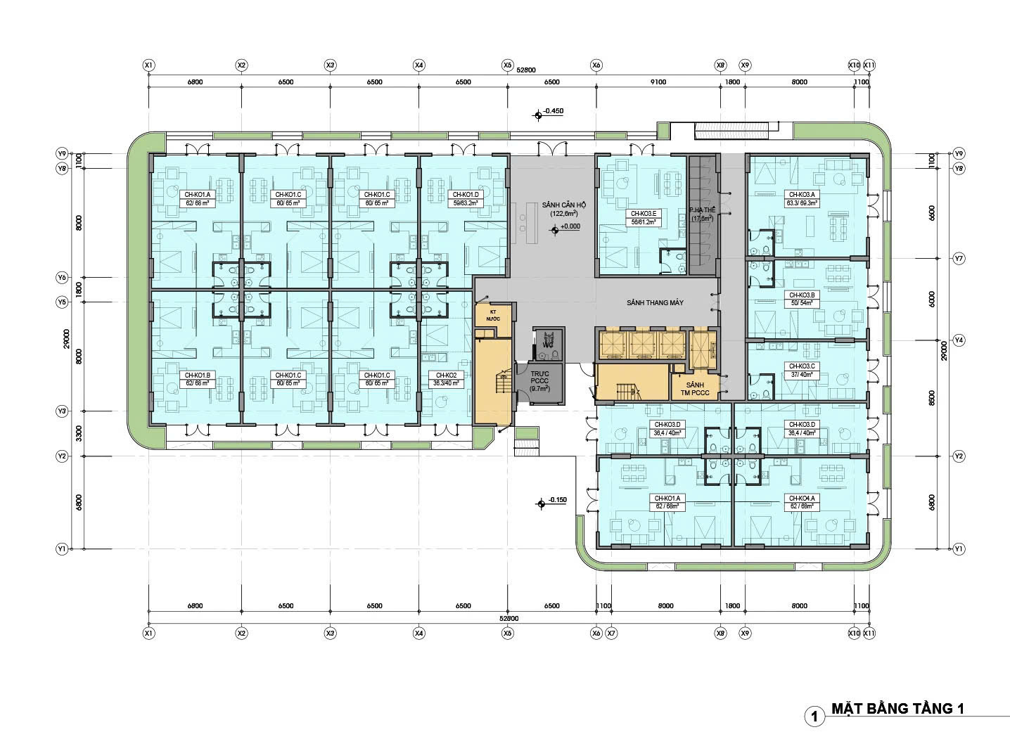
• Tổng số căn hộ nhà ở xã hội: 1236 căn hộ
• Diện tích: từ 27,6m² đến 69,8m²
• Hình thức sở hữu: Sổ hồng vĩnh viễn

• Tọa lạc tại trung tâm khu vực kinh tế phát triển năng động, khu nhà ở xã hội cho công nhân tại thôn Núi Hiểu, xã Quang Châu, huyện Việt Yên, tỉnh Bắc Giang là một dự án tiên phong, mang lại không gian sống chất lượng cao cho người lao động trong các khu công nghiệp lân cận. Được đầu tư bởi Công ty Cổ phần Đầu tư VEGA, dự án trải rộng trên diện tích 4,4 ha, là sự giao thoa hoàn hảo giữa kiến trúc hiện đại và không gian xanh, tạo nên một môi trường sống lý tưởng, thoải mái và tiện nghi.

• Nhà ở xã hội Vega Homes nằm gần các trục đường chính, bao gồm Quốc lộ 1A và đường cao tốc Hà Nội – Bắc Giang, giúp cư dân dễ dàng di chuyển đến Hà Nội, Bắc Ninh và các tỉnh lân cận. Vị trí này cũng kết nối thuận lợi với trung tâm thành phố Bắc Giang, đáp ứng nhu cầu đi lại hàng ngày.

• Được ví như thủ phủ công nghiệp của miền Bắc, Bắc Giang đang chứng kiến một sự thay đổi đáng kể trong lĩnh vực bất động sản với dự án nhà ở xã hội Vega Homes Quang Châu. Từ thời điểm khởi công xây dựng, dự án đã trở thành điểm sáng, góp phần giải tỏa nhu cầu nhà ở dành cho người thu nhập thấp tại huyện Việt Yên nói riêng và TP Bắc Giang nói chung.

• Với 4 tòa tháp cao 18 tầng, mỗi căn hộ trong dự án đều được thiết kế tinh tế nhằm tối ưu hóa không gian sử dụng, mang lại sự tiện lợi và thoải mái tối đa cho cư dân. Điểm đặc biệt là diện tích căn hộ đa dạng từ 27,6m² đến 69,8m², phù hợp với nhu cầu của nhiều đối tượng. Dự án Vega Homes còn tích hợp nhiều tiện ích vượt trội như nhà sinh hoạt cộng đồng 2 tầng, nơi cư dân có thể giao lưu và tổ chức các sự kiện, cùng với trường học ngay trong khuôn viên, mang lại sự an tâm tuyệt đối về môi trường giáo dục cho con em.

• Một trong những điểm nhấn độc đáo của Chung cư Vega Homes Bắc Giang là khu vực cảnh quan rộng hơn 10.000 m² với hệ thống cây xanh, vườn hoa và không gian thư giãn ngoài trời, đem lại bầu không khí trong lành và cảm giác gần gũi với thiên nhiên, giúp cư dân thư giãn sau những giờ làm việc căng thẳng. Bên cạnh đó, vị trí đắc địa của dự án còn mang lại sự thuận tiện về giao thông và dễ dàng tiếp cận các tiện ích ngoại khu như bệnh viện, trung tâm mua sắm và khu công nghiệp.

• Không gian sống xanh không chỉ là một xu hướng mà còn là tiêu chí khi phát triển nhà ở xã hội Vega Homes Việt Yên - Bắc Giang. Khi bước vào khu đô thị, cư dân và khách ghé thăm sẽ bắt gặp một thế giới xanh ngát, với công viên, cây xanh, và hệ thống cảnh quan được chăm sóc tỉ mỉ. Đây không chỉ là một nơi để sống mà còn là một khu vườn giữa lòng đô thị công nghiệp, nơi cư dân có thể thư giãn và tận hưởng thiên nhiên cùng gia đình và bạn bè sau những ngày làm việc mệt mỏi.

• Để nâng cao chất lượng cuộc sống cho cư dân, Chủ đầu tư Vega Homes Bắc Giang đã tâm huyết trong việc lựa chọn và mang đến cho cư dân hệ thống dịch vụ đa tiện ích: nhà trẻ, phòng khám, siêu thị mini, các tiện ích vui chơi giải trí phục vụ cộng đồng cư dân…

• Khu nhà ở xã hội dành cho công nhân Quang Châu - Vega Homes không chỉ là một nơi để ở mà còn là không gian để kiến tạo cuộc sống bền vững, lâu dài với chất lượng sống vượt trội. Đây xứng đáng là lựa chọn hàng đầu cho người lao động, những người đang tìm kiếm sự cân bằng hoàn hảo giữa công việc và gia đình.
• Một trong những định hướng chiến lược của chủ đầu tư Công ty Cổ phần Đầu tư Vega trong thời gian tới là tập trung phát triển các dự án nhà ở phục vụ người lao động có thu nhập thấp, thay đổi quan niệm cũ về nhà ở xã hội, mang tới một môi trường sống hiện đại, văn minh và hạnh phúc.



• Để đảm bảo chất lượng xây dựng tốt nhất cho các căn hộ tại Vega Homes Bắc Giang cùng nhiều tiện ích dịch vụ khác. Chủ đầu tư cho biết đã nghiên cứu kỹ để thiết kế và xây dựng với mong muốn đưa ra giá bán phù hợp với khả năng chi trả của người lao động.




• Không chỉ đáp ứng các tiêu chuẩn chất lượng xây dựng theo quy định, dự án còn áp dụng những tiêu chí nghiêm ngặt hơn từ phía chủ đầu tư. Mỗi căn hộ Vega Homes được thiết kế và xây dựng với tất cả sự tận tâm, được tính toán kỹ lưỡng trong việc sử dụng vật liệu chất lượng và công nghệ hiện đại để đảm bảo tính bền vững và an toàn của công trình.
Thông tin chỉ mang tính chất tham khảo, hiện tại chưa có thông tin chính thức từ CĐT
QUÝ KHÁCH CÓ NHU CẦU XIN VUI LÒNG ĐỂ LẠI THÔNG TIN
TIN TỨC MỚI CẬP NHẬT
DỰ ÁN NỔI BẬT
Chat Zalo