Chung cư Confitech An Khánh
Email : sotaychungcu@gmail.com
Hotline : 0964633626
Chi tiết dự án
LIÊN HỆ TƯ VẤN VÀ ĐẶT LỊCH XEM DỰ ÁN
HOTLINE: 0914.788.345
************

• Tên dự án: Nhà ở cho lực lượng vũ trang Công an nhân dân tại khu đất ký hiệu C3 Sơn Đồng
• Tên thương mại: Confitech An Khánh
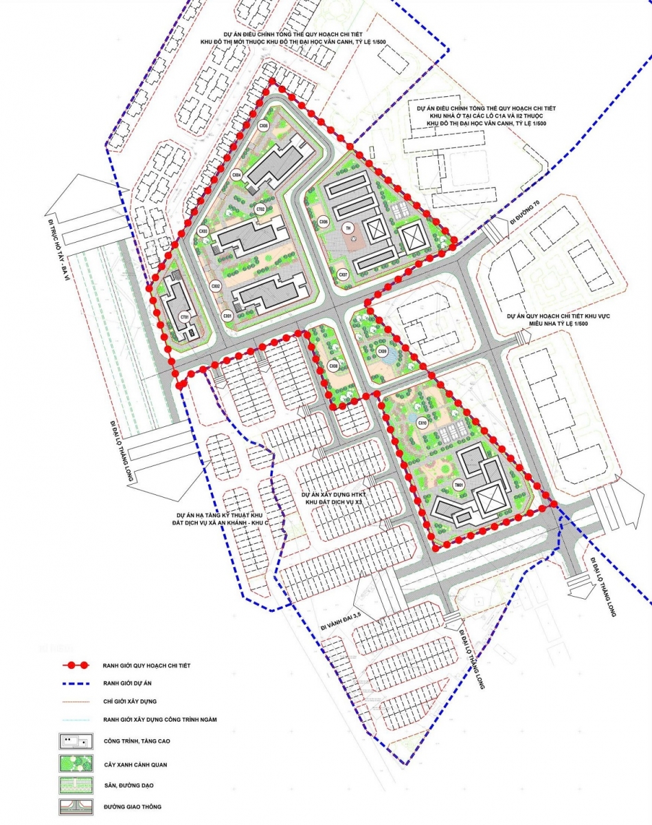
• Vị trí: Khu đất ký hiệu C3 thuộc QHPK đô thị S3, X. Sơn Đồng, TP. Hà Nội
• Chủ đầu tư: Công ty CP Confitech Tây Hà Nội
• Tư vấn thiết kế: Công ty Cổ phần kiến trúc Lập Phương (CUBIC)
• Quy mô: 4 tháp cao 27 tầng nổi, 02 tầng hầm
• Tổng diện tích sàn: 85.008 m2
• Hình thức sở hữu: Sổ hồng vĩnh viễn

• Nhà ở cho lực lượng vũ trang Công an nhân dân - Confitech An Khánh tọa lạc tại vị trí tâm điểm phát triển phía Tây Thủ Đô, thuộc địa phận Xã Sơn Đồng, TP Hà Nội. Đây được coi là vị trí lõi kết nối trực tiếp tới trung tâm thủ đô bằng cả đường nội thị Trịnh Văn Bô và đại lộ Thăng Long. Ngoài ra, dự án còn là tâm điểm kết nối các trục đại lộ huyết mạch như: đường nối đường Phạm Hùng (vành đai 3) với vành đai 3.5 huyện Hoài Đức, đường 70A nối từ Nhổn tới Đại lộ Thăng Long, tuyến Metro số 7 chạy qua khu đô thị.

• Từ Confitech An Khánh, cư dân chỉ mất 5 - 15 phút để kết nối với hệ tiện ích, từ hệ thống giáo dục dày đặc như: trường quốc tế ST.Paul American, trường quốc tế Vinschool, Việt – Úc, trường THPT chuyên Hà Nội Amsterdam, ĐH Thương Mại; đến trung tâm thương mại Aeon Mall Hà Đông, Big C Thăng Long, Vincom Mega Mall, The Garden; sân vận động Mỹ Đình, Trung tâm hội nghị Quốc gia, Bộ Ngoại giao…

• Chung cư Confitech An Khánh là đầu nối với 3 trục đường chính:
- Đầu nối với trục đường 70 đi lên ngã tư Nhổn giao cắt với đường 32 (ĐH Công Nghiệp) 1,5 km
- Đầu nối với trục đường 50m từ KĐT mới Xuân Phương Quốc Hội đường Trần Hữu Dực tới Khu đô thị Mỹ Đình chỉ 4,5 km
- Đầu nối với trục Đại lộ Thăng Long - Lê Trọng Tấn kéo dài sang khu vực Hà Đông

• Nhà ở cho lực lượng vũ trang Công an nhân dân - Confitech An Khánh là minh chứng tuyệt vời cho xu hướng “All in one” - tiểu đô thị khép kín với đầy đủ tiện ích. Chỉ cần vài bước chân, cư dân có thể thả ga mua sắm, giải trí, ăn uống hay thả mình thư giãn trong làn nước trong xanh. Đặc biệt, toàn bộ hệ thống tiện ích đều được chủ đầu tư dành riêng cho cư dân, mang lại những phút giây trải nghiệm tuyệt vời của cuộc sống.

• Với phương châm đem đến cho khách hàng một cuộc sống thoải mái và tiện nghi, các nhà làm Dự án Confitech An Khánh - Sơn Đồng không những chú trọng đặc biệt đến thiết kế các căn hộ cho phù hợp với phong thủy mà còn đem đến cho các khách hàng của mình một cuộc sống đầy đủ ngay chính tại nơi đây mà không phải đi bất cứ đâu như: mua sắm, giải trí, chăm sóc sức khỏe, làm đẹp, tập luyện thể thao... Các tiện ích ngay tại dự án giúp bạn tiết kiệm nhiều thời gian, công sức và tiền bạc sẽ nâng tầm cuộc sống cho bạn.

• Toàn bộ căn hộ tại Confitech An Khánh được thiết kế với thiết kế ưu việt để đáp ứng toàn bộ nhu cầu nghỉ ngơi tươi mát của khách hàng, đảm báo đưa đến 100% lượng không khí tươi ráo vào trong từng căn hộ của bạn. Đặc biệt hơn nữa là cách bố trí hệ thống bế sát với lô gia để tạo ra sự thông thoáng cho bếp và căn hộ của gia chủ.

• Tại Chung cư Confitech An Khánh - Sơn Đồng, cư dân sẽ được hưởng một cuộc sống tiện nghi và thuận tiện với hệ thống an toàn, hệ thống thang máy chở người và hàng hóa riêng biệt nhằm đảm bảo lưu lượng di chuyển của cư dân vào giờ cao điểm, hệ thống an ninh đồng bộ, camera giám sát 24/24, máy phát điện dự phòng khởi động sau 15 giây khi xảy ra sự cố, tầng hầm để xe rộng rãi đáp ứng nhu cầu đi lại của cho cư dân

• Với những thiết kế hiện đại, áp dụng các tiêu chuẩn kiểu mẫu cho những căn hộ tại Chung cư - Nhà ở xã hội Confitech An Khánh người mua nhà có thể hoàn toàn yên tâm về không gian sống, việc vận dụng các yếu tố phong thuỷ vào trong từng thiết kế với chủ đạo các căn hộ đều lấy cảm hừng “Chạm tay vào Nắng và Gió” kết hợp tinh tế với thiên nhiên, mang thiên nhiên vào từng căn hộ nhưng vẫn giữ được sự sang trọng và đẳng cấp.
• Với phương châm kiến tạo nên một “không gian sống lý tưởng” cho mỗi cư dân, Chủ đầu tư đã lựa chọn nhà thầu xây dựng là nhà thầu uy tín nhất trên thị trường bất động sản hiện nay để thi công dự án, đồng thời cùng với nhà thầu tư vấn giám sát rất khắt khe trong công tác giám sát, kiểm định chất lượng thi công Dự án Confitech An Khánh. Do đó, khi trực tiếp tham quan dự án, khách hàng có thể cảm nhận được sự chỉnh chu trong từng đường phào chỉ, điện, nước hay chất lượng bê tông, sơn bả,…
• Đúng như chia sẻ của chủ đầu tư, khu căn hộ Confitech An Khánh được thiết kế rất thông minh, giúp tối ưu hóa diện tích cũng như công năng sử dụng của mỗi phòng. Hệ thống logia, vách kính, cửa sổ được bố trí một cách khoa học giúp cả căn hộ luôn thông thoáng, ngập tràn ánh sáng và gần gũi với thiên nhiên.
• Các căn hộ tại Confitech An Khánh đây được chăm chút tới từng chi tiết, trang bị full nội thất cao cấp như khóa cửa thông minh, cửa chống cháy Lecmax, hệ thống điều hòa Multi Mitshubishi, thiết bị vệ sinh Kohler... Các căn hộ có tầm nhìn thoáng đãng, nơi cư dân có thể ngắm trọn vẹn cảnh sắc xanh mát của công viên, hồ điều hòa cũng như thành phố lung linh khi đêm về.
LIÊN HỆ TƯ VẤN VÀ ĐẶT LỊCH XEM DỰ ÁN
HOTLINE: 0914.788.345
************
TIN TỨC MỚI CẬP NHẬT
DỰ ÁN NỔI BẬT
Dự án cùng khu vực
Chat Zalo